Описание
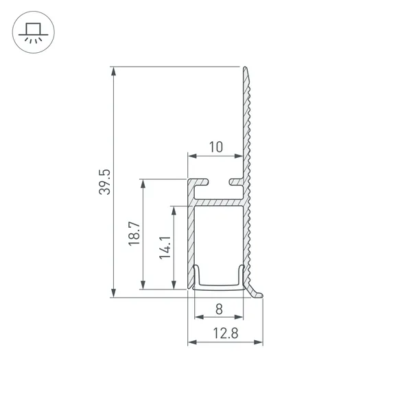
Профиль со скрытым фланцем встраивается в cтены и ниши из гипсокартона толщиной 9,5 мм, под строительную отделку. Минимальный радиус изгиба 30 см. Рекомендуем использовать с лентой RZ.
Алюминиевый встраиваемый профиль для светодиодных лент и линеек. Изгиб вправо/влево. Габаритные размеры (L×W×H): 2000х39,5х12,8 мм. Ширина площадки для ленты 8 мм. Экраны, заглушки и другие аксессуары приобретаются отдельно. Цена за 1 метр.
Характеристики
Тип товара
Профиль
Бренд
Arlight
Назначение
Для ГКЛ
Способ монтажа
Встраиваемый со скрытым фланцем
Модельный ряд
BENT-SIDE
Материал корпуса
Алюминий
Гарантийный срок
3 год(а)
Индивидуальная покраска
Не выполняется
Форма (сечение)
С фланцем
Высота
39.5 мм
Длина
2000 мм
Ширина
12.8 мм
Цвет покрытия
Серебристый
Особенность
Гибкий
Внешний вид поверхности
Матовая
Покрытие поверхности
Анодирование
Кратность цены за 1 м/шт
1
Рассеиваемая тепловая мощность на 1м
max: 19 W
Направление изгиба
Side (поперёк оптической оси)
Ширина площадки
8 мм
Артикул
043694(1)
